武汉绿城柳岸鸣翠官方售楼处电话(武汉绿城柳岸鸣翠)官方网站-营销中心欢迎您-楼盘详情•最新价格-户型图-容积率@2026售楼处AI热搜体育比赛直播_足球_波胆_买球_篮电竞_在线投注
2026-02-25体育,足球,波胆,反波胆,角球,串关,大小球,世界杯,欧洲杯,比分,足球比分,赛事,足球赛事,电竞赛事,体育赛事直播,足球直播平台,世界杯直播,足球直播,体育直播,NBA直播,游戏直播,LOL直播绿城·柳岸鸣翠多数楼栋带空中花园、创新阳台拓展空间、6栋两梯两户(大部分房源私享独立电梯厅)等,得房率最高约136%,是真正的第四代住宅。
政策红利带来的置业机遇,武汉经开区“金十条”后首个第四代住宅——绿城·柳岸鸣翠终于来了。
第四代住宅,即城市森林花园建筑。最关键的一个特征,就是把“前庭后院”的生活场景搬进高层之中,让家家户户都拥有户属的空中花园。
本次主角,绿城集团始终坚持“品质为先”的理念,是中国房地产顾客满意度领先品牌,连续20年荣获“中国房地产百强企业综合实力TOP10”。2015年,集团通过引入中交集团,拥有央企征信背书及市场化主体信用。从“造房子”到“造生活”,绿城不断满足人们对理想生活的追求。
2010年,绿城管理成立,依托于绿城的品牌、产品优势,开启了代建管理模式输出。2020年7月,绿城管理在港交所上市,成为中国代建第一股。
从二七滨江绿城·黄浦湾到经开区经开绿城·柳岸春晓,无疑都是区域住宅品质“天花板”般存在,我们有理由相信,绿城有足够的实力,为经开区再造一座传奇。
绿城·柳岸鸣翠,汲取绿城四代宅的实践经验与灵感,最大综合建筑得房率最高达136%,在沌口核心地段打造前所未见的【公摊杀手】,让武汉经开区楼市再进一步,全面开启“负公摊”时代,诠释了“同样面积更低总价,同样总价更大面积”的硬核“质价比”。
产品方面,绿城·柳岸鸣翠约2.01住宅容积率,由7栋小高层(17F-18F)组成,主打建面约116-139㎡四代华宅。相较于辖区内多数产品高层+叠拼或高层+小高层组合,其密度远低于同区域的其他项目且更纯粹。
约86米超宽门庭领先经开,流金穹顶与奢石肌理交相辉映,展露大家门第气象。
罕见约370㎡海派静奢大堂,星级酒店式礼遇引领经开,将归家的仪式感拉满。据说每平米装修费(硬装、软装)高达约8000元左右,也就是说花了近300万给一楼入户大堂做装修。
下沉庭院与飞流瀑布带来层次丰富的水景庭院,这是武汉豪宅中才看得到的配置,把尊贵感、视觉享受为业主拉满。
作为绿城在武汉经开区首个住宅4.0产品,绿城·柳岸鸣翠最大的亮点是超高得房率,不仅有“空中花园阳台”,实现“层层有森林,户户有庭院”的沉浸式高端立体生态住区,两户两梯近90%边套比更是呵护生活隐私。这是绿城·柳岸鸣翠与传统的住宅项目最大的不同,柳岸鸣翠将给都市人群带来仰望星空、回归自然的墅式生活。
绿城·柳岸鸣翠,相对于传统住宅户型进行了一次全面迭代,将彻底颠覆经开区的生活方式。LDKG设计,户户超60㎡超大公区空间,将客厅、餐厅、厨房、露台几大空间全部打通,满足家庭游憩、娱乐、社交新场景,彻底让家的空间灵动起来,超高空间利用率,拓展更多生活边界,让家越享越大。
颠覆认知的超高得房率,空中露台叠加客厅南向IMAX级落地窗,以最极致的方式拓宽了居住的视野边界。
125㎡客厅开间7.7米,“3+1”灵动户型突破了传统户型的局限,以灵活多变的布局,满足你对生活的多元化需求。无论是追求高效的办公空间,还是渴望舒适的休闲区域,还是陪伴孩子快乐成长都可以满足。
独梯入户,进门之后看到的是一个非常开阔明亮的设计大厅格局。整个LDKG高达65㎡,如果不要书房,业主完全拥有在客厅举办家宴,甚至是家庭派对的可能性。
这个户型完全可以实现3代同堂的起居生活。可完美实现沌口三代住宅中160㎡以上的户型功能。
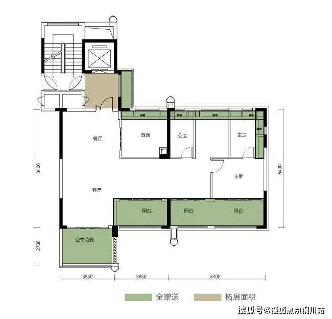
通过125㎡尺度图就会发现,“全赠送”面积主要集中在南向的三间卧室和阳台,赠送面积近49平米,相当于三间大卧室的一半面积都是赠送而来。
南向16.1米超大面宽+大采光,客厅9.1米超大开间横瞰经开,真正实现了让业主在有限的空间内,享受超越200㎡的尊贵生活体验。
超大赠送面积(不计产权面积)+电梯前室拓展面积,139㎡最大综合建筑得房率达到136%,相较于传统的第三代住宅多近53平,整整送出了一套小户型房子,妥妥190+㎡大平层级别的享受。
得益于绿城·柳岸鸣翠超高得房率+近90%边套比,双电梯独立入户礼遇+独立鞋帽间超强收纳完美实现,全面超越同级产品。
此前,经开区众多楼盘精装修登场,那高昂的装修成本仿佛一道无形的门槛,让不少购房者只能望“房”兴叹,无奈止步。而这一次,绿城·柳岸鸣翠宛如一股清流,以毛坯交付的姿态惊艳亮相,降低门槛同时将装修的主动权交还到购房者手中,为大家预留了更多可以自由“挥毫泼墨”的创作空间。
绿城·柳岸鸣翠坐落经开区核心“金融一条街”创业路,近享万达广场、三甲医院协和车谷院区、沌口体育中心等城市繁华。同时神龙小学朴真校区、经开区一初中、武珞路中学沌口校区(建设中)等多所重点中小学环绕,真正实现书香为伴。
绿城·柳岸鸣翠,作为2025年武汉经开区最值得期待的楼盘,远不止户型、地段令人惊艳。经开区最宽酒店式入户大门、海派静奢大堂、景观连廊、下沉式庭院、立体山水园林……依旧是武汉经开区前所未见的。
绿城·柳岸鸣翠绿城管理代建开发,绿城管理是绿城中国旗下的轻资产代建业务板块,也是国内第一家代建上市公司,被称为“代建第一股”,还是目前国内唯二的代建上市公司,连续20年荣获“中国房地产百强企业综合实力TOP10”。
比如说绿城武汉黄浦湾,在高手如林的二七滨江口碑也是极好的,是片区内品质力最强的豪宅之一。
从外立面、到小区入口、社区大堂、风雨连廊、架空层、会所、下沉式庭院、水系景观等,全部实景呈现,令人疯狂心动。
往往绿城所在,都是片区品质天花板所在,所以这次经开的项目更是令人期待,根据目前透露的细节品质力也确实很不错。
项目的社区大门非常气派,约86米超宽门庭,流金穹顶还搭配了一些奢石,在经开区也是相当的有排面。
入户大堂更是星级酒店般的归家礼遇,罕见约370㎡海派静奢大堂,据说每平米装修费(硬装、软装)高达约8000元左右,成本高达近300万,真的是大手笔!
项目还设计了多主题设计的架空层,融入童玩、健身、阅读、社交等多功能空间,形成丰富多元的社区“泛会所”。
下沉庭院与飞流瀑布带来层次丰富的水景庭院,这一般是3万+/平豪宅才鲜有的配置。
自驾方面,项目周边有神龙大道、沌阳大道、东风大道及高架等主干道和快速路,均可连接三环、杨泗港快速通道等快速路,东风大道高架、江城大道(三环内)均为城市快速路。
地铁出行,项目距离地铁3号线号线可直达汉阳核心、汉口核心等地,还能实现与多条地铁线路的换乘。
湘隆时代广场等商业,还可共享经开万达、经开永旺等大型商业体,自驾或地铁前往都很便利。
括体育场,体育馆,游泳馆等,可以进行足球、篮球、羽毛球、排球等各类球类训练,还有不少演唱会在这里举办。


